601 7 Street E Drumheller, Alberta T0J 0Y5

9,000 sqft
Central Air Conditioning Forced Air

$575,000

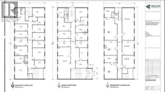
Back on the market!! This is a fantastic opportunity to acquire a rare, well maintained commercial property with roughly 9,000 square feet of space over three floors in a one-of-a-kind Drumheller location. What makes it rare? Occupying a corner lot in one of the town’s most popular riverside residential areas, the property is two blocks from primary traffic routes, a short distance from the downtown district, and immediately across the street from Drumheller’s two large senior’s lodges. Most commercial locations in Drumheller are highway or downtown retail, limiting both their desirability and their accessibility, making this opportunity very uncommon!This location creates unparalleled direct access to the surrounding residential community and the adjacent seniors population - ideal for medical, daycare or service related businesses. This community appeal is evidenced by the long-term main floor tenant, an Alberta Government family and community services centre.The tenanted floor of the building has been fully renovated, however the seller delayed renovating the other two floors to allow buyers to explore the other usage opportunities that the large 18,600 sq.ft (0.43 acre) lot provides - either for building expansion, renovations specific to future tenants, or for possible conversion of the building to residential apartments or condos. This is because Drumheller’s acute residential shortage makes this location also ideal for rental apartments or condominium conversion - providing a myriad of options for a savvy investor beyond the existing commercial and expansion possibilities.Preliminary discussions with the town planning department has shown that there is ample underground capacity for both expansion or conversion, and the planning department has expressed support for both options. Ample municipal services are immediately adjacent to the property to accommodate any expanded requirements for residential use or for building expansion.Access is simple with entrances and wide staircases at either end of the building plus a chair-lift at the main entrance allowing those with mobility limitations access between floors. The roof is relatively new, and the building structure is solid, using dimensional lumber interior framing. High ceilings also allow for easy servicing and cable/plumbing runs - if or as desired. These in combination make it a low-maintenance, extremely affordable, and easy to manage asset. With windows replaced roughly 10 years ago, efficient forced air heating systems and cooling systems, upgraded 400amp electrical, ample parking, key location, plus enviable flexibility for a wide range of current and future usage options - this is a remarkable investment you don’t want to miss! (id:52784)

Property Details

MLS® Number A2247539
Property Type Other
Community Name Riverview Park
Features See Remarks, Back Lane
Parking Space Total 32
Plan 1734jk
Road Type Paved Road
Total Buildings 1

Building

Constructed Date 1962
Construction Material Poured Concrete, Wood Frame
Cooling Type Central Air Conditioning
Exterior Finish Brick, Concrete
Fire Protection Alarm System
Foundation Type Poured Concrete
Heating Fuel Natural Gas
Heating Type Forced Air
Size Exterior 9000 Sqft
Size Interior 9,000 Sqft
Total Finished Area 9000 Sqft
Type Commercial Mix

Land

Acreage No
Size Frontage 38.1 M
Size Irregular 18857.00
Size Total 18857 Sqft|10,890 - 21,799 Sqft (1/4 - 1/2 Ac)
Size Total Text 18857 Sqft|10,890 - 21,799 Sqft (1/4 - 1/2 Ac)
Zoning Description Nd

https://www.realtor.ca/real-estate/28715357/601-7-street-e-drumheller-riverview-park

Contact Us

Contact us for more information

Generating Captcha

Your Favourites

 

No Favourites Found

 

Compare listings

Compare