4 Bedroom
5 Bathroom
3,139 sqft
Fireplace
See Remarks
Forced Air
$2,599,900
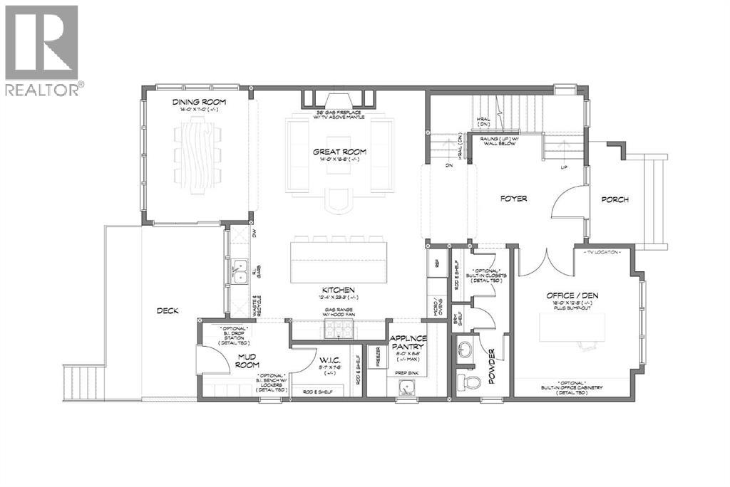
Coming soon, this exceptional detached residence showcases refined craftsmanship, elevated design, and premium finishes in the heart of Altadore, Calgary’s premier inner-city community. Blending timeless architecture with modern sophistication, this luxury home offers an unparalleled lifestyle just minutes from Marda Loop’s upscale cafés, restaurants, and boutique shopping delivering walkable convenience with an exclusive neighbourhood feel. Close to top-rated schools including Altadore, Dr. Oakley, Central Memorial, Rundle Academy, Master’s Academy, and Lycée International de Calgary, and with quick access to major routes, this address is ideal for families and professionals seeking luxury real estate in Calgary.Step inside to a welcoming, design-forward foyer that sets the tone for the home’s elevated interiors. Just off the entrance, a private OFFICE provides a sophisticated workspace perfect for remote professionals or quiet study. The main level unfolds into a stunning great room, anchored by a statement fireplace and designed for both upscale entertaining & relaxed everyday living. Expansive windows invite natural light, enhancing the home’s airy yet intimate atmosphere.The chef-inspired kitchen is a true showpiece, featuring WOLF & SUB-ZERO appliances, custom cabinetry, and a substantial quartz island ideal for hosting & gathering. A thoughtfully designed walk-in pantry with prep sink maintains a seamless, clutter-free aesthetic while offering premium functionality. The dining area opens effortlessly to the rear deck, creating a seamless indoor-outdoor luxury living experience perfect for summer entertaining. A beautifully appointed MUDROOM with custom built-ins connects to the rear entry, offering practical elegance, while a discreet powder room completes the main level.Upstairs, the home continues to impress and balances privacy & comfort. The serene Primary suite is positioned at the front of the home and elevated by a dramatic VAULTED CEILING, a spa cious walk-in closet, and a spa-caliber ENSUITE featuring dual vanities, a deep soaker tub, and a glass-enclosed shower. Two additional generously sized bedrooms are paired with private ENSUITES for ultimate convenience. A centrally located laundry room enhances daily ease, while the versatile LOFT AREA offers an elegant bonus space ideal for a media lounge, second family room, or executive retreat *option to covert to 4th bedroom*The professionally developed basement extends the home’s luxury living space. A spacious family room and GAMES AREA create the perfect setting for entertaining, complemented by a dedicated BAR AREA for elevated hosting. A private GYM supports wellness at home, while a well-appointed GUEST BEDROOM & full bath provide comfort & privacy for visitors & ample storage keeps everything tucked away. Surrounded by mature landscaping and a strong sense of community, this luxury home blends upscale living with everyday convenience. *UNDER CONSTRUCTION* (id:52784)
Property Details
|
MLS® Number
|
A2283373 |
|
Property Type
|
Single Family |
|
Community Name
|
Altadore |
|
Amenities Near By
|
Park, Playground, Recreation Nearby, Schools, Shopping |
|
Features
|
Back Lane, Closet Organizers, Gas Bbq Hookup |
|
Parking Space Total
|
3 |
|
Plan
|
3320aj |
|
Structure
|
Deck |
Building
|
Bathroom Total
|
5 |
|
Bedrooms Above Ground
|
3 |
|
Bedrooms Below Ground
|
1 |
|
Bedrooms Total
|
4 |
|
Appliances
|
Refrigerator, Range - Gas, Dishwasher, Microwave, Oven - Built-in, Hood Fan, Garage Door Opener, Washer & Dryer |
|
Basement Development
|
Finished |
|
Basement Type
|
Full (finished) |
|
Constructed Date
|
2027 |
|
Construction Material
|
Wood Frame |
|
Construction Style Attachment
|
Detached |
|
Cooling Type
|
See Remarks |
|
Exterior Finish
|
Composite Siding, Stucco, Wood Siding |
|
Fireplace Present
|
Yes |
|
Fireplace Total
|
1 |
|
Flooring Type
|
Carpeted, Ceramic Tile, Hardwood |
|
Foundation Type
|
Poured Concrete |
|
Half Bath Total
|
1 |
|
Heating Type
|
Forced Air |
|
Stories Total
|
2 |
|
Size Interior
|
3,139 Sqft |
|
Total Finished Area
|
3139.41 Sqft |
|
Type
|
House |
Parking
Land
|
Acreage
|
No |
|
Fence Type
|
Fence |
|
Land Amenities
|
Park, Playground, Recreation Nearby, Schools, Shopping |
|
Size Depth
|
35.98 M |
|
Size Frontage
|
12.8 M |
|
Size Irregular
|
460.54 |
|
Size Total
|
460.54 M2|4,051 - 7,250 Sqft |
|
Size Total Text
|
460.54 M2|4,051 - 7,250 Sqft |
|
Zoning Description
|
R-cg |
Rooms
| Level |
Type |
Length |
Width |
Dimensions |
|
Basement |
Bedroom |
|
|
12.67 Ft x 11.00 Ft |
|
Basement |
Family Room |
|
|
14.58 Ft x 20.75 Ft |
|
Basement |
Recreational, Games Room |
|
|
10.00 Ft x 15.75 Ft |
|
Basement |
Exercise Room |
|
|
14.58 Ft x 12.00 Ft |
|
Basement |
4pc Bathroom |
|
|
Measurements not available |
|
Main Level |
Living Room |
|
|
14.00 Ft x 18.50 Ft |
|
Main Level |
Kitchen |
|
|
12.33 Ft x 23.25 Ft |
|
Main Level |
Pantry |
|
|
8.00 Ft x 8.67 Ft |
|
Main Level |
Dining Room |
|
|
14.00 Ft x 11.00 Ft |
|
Main Level |
Office |
|
|
16.00 Ft x 12.42 Ft |
|
Main Level |
Bedroom |
|
|
11.00 Ft x 12.00 Ft |
|
Main Level |
2pc Bathroom |
|
|
Measurements not available |
|
Upper Level |
Primary Bedroom |
|
|
16.00 Ft x 13.50 Ft |
|
Upper Level |
Other |
|
|
11.00 Ft x 9.00 Ft |
|
Upper Level |
Bedroom |
|
|
11.00 Ft x 12.00 Ft |
|
Upper Level |
Loft |
|
|
11.67 Ft x 12.17 Ft |
|
Upper Level |
Laundry Room |
|
|
12.00 Ft x 6.17 Ft |
|
Upper Level |
3pc Bathroom |
|
|
Measurements not available |
|
Upper Level |
4pc Bathroom |
|
|
Measurements not available |
|
Upper Level |
5pc Bathroom |
|
|
Measurements not available |
https://www.realtor.ca/real-estate/29387348/4906-20a-street-sw-calgary-altadore