5 Bedroom
4 Bathroom
1,960 sqft
Fireplace
See Remarks
Forced Air
Lawn
$1,249,000
Situated on one of the area’s most charming, family-friendly streets, beautifully lined with mature oak trees, this location delivers the perfect blend of inner-city convenience and neighborhood warmth. Exceptional pre-sale opportunity in the highly sought-after community of Mount Pleasant! Offering over 2,800 sq ft of thoughtfully designed living space, this home features a fully legal basement suite with separate entrance and private laundry — perfect for rental income, mortgage assistance, or multi-generational living. The bright main floor features 11-ft ceilings, wide plank hardwood floors, and a designer kitchen with a dramatic 14-ft waterfall island, quartz countertops, white oak shaker cabinetry, plaster hood fan, premium appliances, and modern gold/black accents. The spacious living room showcases a custom brick gas fireplace and built-ins, while the mudroom offers functional storage.Upstairs offers 9-ft ceilings and a stunning primary retreat with HUGE vaulted ceilings, and a spa-inspired 5-piece ensuite with in-floor heat and steam shower rough-in. Two additional bedrooms with walk-in closets and a full laundry room complete the level.The legal basement suite includes a full kitchen, living area, 2 bedrooms, bath, and separate laundry. Additional features include dual furnaces with HRVs, A/C rough-in, ceiling speakers, security rough-in, and custom closets.Located steps to Confederation Park and minutes to SAIT, UofC, hospitals, LRT, and downtown.Call today for details! (id:52784)
Property Details
|
MLS® Number
|
A2286864 |
|
Property Type
|
Single Family |
|
Community Name
|
Mount Pleasant |
|
Amenities Near By
|
Park, Playground, Recreation Nearby, Schools, Shopping |
|
Features
|
See Remarks, Back Lane, No Animal Home, No Smoking Home, Level, Gas Bbq Hookup |
|
Parking Space Total
|
2 |
|
Plan
|
2617ag |
|
Structure
|
Deck |
Building
|
Bathroom Total
|
4 |
|
Bedrooms Above Ground
|
3 |
|
Bedrooms Below Ground
|
2 |
|
Bedrooms Total
|
5 |
|
Appliances
|
Refrigerator, Gas Stove(s), Dishwasher, Microwave, Hood Fan, See Remarks, Garage Door Opener, Washer & Dryer |
|
Basement Development
|
Finished |
|
Basement Features
|
Suite |
|
Basement Type
|
Full (finished) |
|
Constructed Date
|
2026 |
|
Construction Material
|
Wood Frame |
|
Construction Style Attachment
|
Detached |
|
Cooling Type
|
See Remarks |
|
Exterior Finish
|
See Remarks |
|
Fireplace Present
|
Yes |
|
Fireplace Total
|
1 |
|
Flooring Type
|
Carpeted, Hardwood |
|
Foundation Type
|
Poured Concrete |
|
Half Bath Total
|
1 |
|
Heating Type
|
Forced Air |
|
Stories Total
|
2 |
|
Size Interior
|
1,960 Sqft |
|
Total Finished Area
|
1960.25 Sqft |
|
Type
|
House |
Parking
Land
|
Acreage
|
No |
|
Fence Type
|
Fence |
|
Land Amenities
|
Park, Playground, Recreation Nearby, Schools, Shopping |
|
Landscape Features
|
Lawn |
|
Size Depth
|
36.55 M |
|
Size Frontage
|
7.62 M |
|
Size Irregular
|
3000.00 |
|
Size Total
|
3000 Sqft|0-4,050 Sqft |
|
Size Total Text
|
3000 Sqft|0-4,050 Sqft |
|
Zoning Description
|
Rc-g |
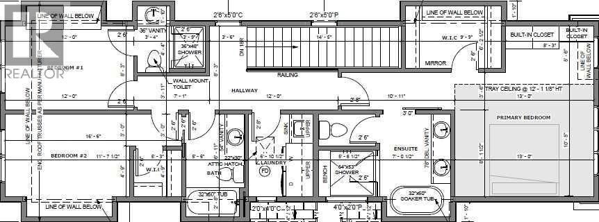
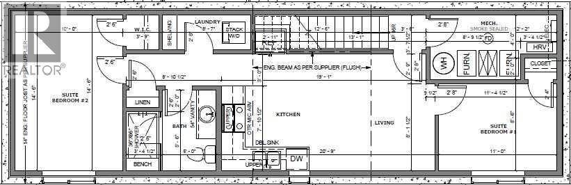
Rooms
| Level |
Type |
Length |
Width |
Dimensions |
|
Second Level |
5pc Bathroom |
|
|
Measurements not available |
|
Second Level |
4pc Bathroom |
|
|
Measurements not available |
|
Second Level |
Primary Bedroom |
|
|
17.00 Ft x 13.00 Ft |
|
Second Level |
Bedroom |
|
|
16.50 Ft x 8.42 Ft |
|
Second Level |
Bedroom |
|
|
12.00 Ft x 8.25 Ft |
|
Main Level |
2pc Bathroom |
|
|
Measurements not available |
|
Unknown |
4pc Bathroom |
|
|
Measurements not available |
|
Unknown |
Bedroom |
|
|
17.00 Ft x 10.00 Ft |
|
Unknown |
Bedroom |
|
|
11.00 Ft x 8.00 Ft |
https://www.realtor.ca/real-estate/29370756/411-28-avenue-nw-calgary-mount-pleasant