5 Bedroom
4 Bathroom
2,314 sqft
Fireplace
None
Forced Air
$799,000
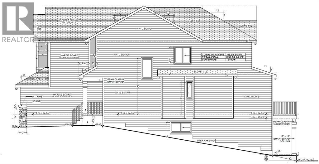
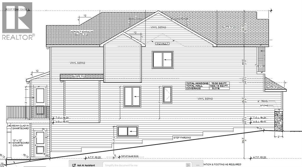
READY IN APRIL 2026 / BRAND NEW / WALK-OUT BASEMENT / LOT BACKING ONTO WETLANDS / SPICE KITCHEN / MAIN FLOOR BEDROOM + FULL BATH / TOTAL 5 BED + 4 FULL BATH / DUAL MASTER BEDROOM / NEW HOME GST REBATE (Eligibility restrictions apply). Amazing Design! Unique in Features! Brand New Home! Over 2300+ SQFT of stylish design welcomes you into this stunning FIVE BEDROOM and FOUR FULL BATH home located in the beautiful community of Cornerstone. You're welcomed to a thoughtfully designed living space that maximizes every inch while offering an abundance of space for your whole family to enjoy! The gorgeous OPEN FLOOR PLAN with 9 feet ceiling, invites you in to discover a lovely kitchen that boasts beautiful QUARTZ counter tops, sleek stainless steel appliance package with an upgraded cooktop, French Door Fridge with Internal Water + Ice, Built in Wall Oven/Microwave Combo and a power pack built-in cabinet hoodfan. A large walk-in SPICE KITCHEN and beautiful extended over-sized flush centre Island that overlooks the generous great room and dining room-Ideal for all entertaining. The main floor has a beautiful view of the NATURAL WETLANDS from windows on back. A sizeable 5TH BEDROOM on the main floor, perfect for a large family or working from home, along with full bath adjacent to this functional space. A mudroom with storage gives a convenient space for the family to access to and from garage. Upstairs, you will discover FOUR MORE BEDROOMS with TWO MASTER Bedroom's, with the main one boasting a VAULTED CEILING, a 5pc en-suite with dual vanities, stand alone shower, over sized bath, window overlooking natural wetlands and large walk-in closet. A centralized BONUS ROOM with VAULTED CEILING offers an additional living space and another 3-pc full bath and LAUNDRY WITH SINK and storage complete this level. ADDITIONAL FEATURES: Upgraded Fit and Finish , ALL BATHROOMS having standing showers, Lot backing onto expansive wetlands, a 12 x 11 feet deck with open views of wetlands, ir on spindle railing added to stairs, and raised 9' basement ceiling height and 3-piece rough-in plumbing along with patio door on the back. Situated close to the International Airport with quick access to both Deer Foot Trail and Stony Trail along with new amenities being added to the community continuously, you will enjoy all Cornerstone has to offer. A brand new build with all of the difficult decisions decided along with a functional and intelligent floorplan for a large family. (id:52784)
Property Details
|
MLS® Number
|
A2272289 |
|
Property Type
|
Single Family |
|
Neigbourhood
|
Cornerstone |
|
Community Name
|
Cornerstone |
|
Amenities Near By
|
Park, Playground, Schools, Shopping |
|
Features
|
Other, Pvc Window, No Neighbours Behind, Environmental Reserve |
|
Parking Space Total
|
4 |
|
Plan
|
2311614 |
|
Structure
|
Deck |
Building
|
Bathroom Total
|
4 |
|
Bedrooms Above Ground
|
5 |
|
Bedrooms Total
|
5 |
|
Amenities
|
Other |
|
Appliances
|
Refrigerator, Cooktop - Gas, Dishwasher, Microwave, Oven - Built-in, Humidifier, Garage Door Opener, Washer & Dryer, Cooktop - Induction |
|
Basement Development
|
Unfinished |
|
Basement Features
|
Walk Out |
|
Basement Type
|
Full (unfinished) |
|
Constructed Date
|
2026 |
|
Construction Material
|
Poured Concrete, Wood Frame |
|
Construction Style Attachment
|
Detached |
|
Cooling Type
|
None |
|
Exterior Finish
|
Concrete, Vinyl Siding |
|
Fireplace Present
|
Yes |
|
Fireplace Total
|
1 |
|
Flooring Type
|
Carpeted, Vinyl Plank |
|
Foundation Type
|
Poured Concrete |
|
Heating Fuel
|
Natural Gas |
|
Heating Type
|
Forced Air |
|
Stories Total
|
2 |
|
Size Interior
|
2,314 Sqft |
|
Total Finished Area
|
2314 Sqft |
|
Type
|
House |
Parking
Land
|
Acreage
|
No |
|
Fence Type
|
Partially Fenced |
|
Land Amenities
|
Park, Playground, Schools, Shopping |
|
Size Depth
|
32.13 M |
|
Size Frontage
|
10.37 M |
|
Size Irregular
|
329.00 |
|
Size Total
|
329 M2|0-4,050 Sqft |
|
Size Total Text
|
329 M2|0-4,050 Sqft |
|
Zoning Description
|
R-g |
Rooms
| Level |
Type |
Length |
Width |
Dimensions |
|
Main Level |
Kitchen |
|
|
11.75 Ft x 9.13 Ft |
|
Main Level |
Dining Room |
|
|
13.08 Ft x 11.50 Ft |
|
Main Level |
Other |
|
|
11.75 Ft x 5.58 Ft |
|
Main Level |
Great Room |
|
|
14.42 Ft x 15.00 Ft |
|
Main Level |
Foyer |
|
|
6.00 Ft x 7.33 Ft |
|
Main Level |
Other |
|
|
6.00 Ft x 5.00 Ft |
|
Main Level |
Other |
|
|
5.00 Ft x 7.08 Ft |
|
Main Level |
Bedroom |
|
|
10.08 Ft x 9.50 Ft |
|
Main Level |
3pc Bathroom |
|
|
8.50 Ft x 5.00 Ft |
|
Upper Level |
Bonus Room |
|
|
14.92 Ft x 11.00 Ft |
|
Upper Level |
Laundry Room |
|
|
5.00 Ft x 8.00 Ft |
|
Upper Level |
Other |
|
|
5.58 Ft x 8.58 Ft |
|
Upper Level |
Other |
|
|
4.58 Ft x 7.33 Ft |
|
Upper Level |
Bedroom |
|
|
14.25 Ft x 11.00 Ft |
|
Upper Level |
Bedroom |
|
|
10.58 Ft x 10.08 Ft |
|
Upper Level |
Bedroom |
|
|
11.00 Ft x 10.08 Ft |
|
Upper Level |
Primary Bedroom |
|
|
13.83 Ft x 13.25 Ft |
|
Upper Level |
3pc Bathroom |
|
|
5.00 Ft x 8.17 Ft |
|
Upper Level |
3pc Bathroom |
|
|
5.00 Ft x 8.58 Ft |
|
Upper Level |
5pc Bathroom |
|
|
11.00 Ft x 9.25 Ft |
https://www.realtor.ca/real-estate/29130749/167-corner-glen-crescent-ne-calgary-cornerstone